Plans architecturaux
Géotop-Réseaux réalise différents types de plans :
- Plans d’intérieur :
les plans d’intérieur sont indispensables à la vente, la location, la mise en copropriété ou la gestion de locaux et de bâtiments.






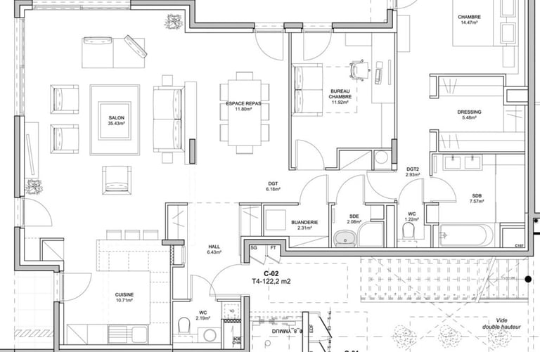
- Plans d’architecture :
pour répondre aux besoins d’un maître d’œuvre ou d’un maître d’ouvrage, Géotop-Réseaux établit des plans d’intérieur détaillés, indispensables à la réhabilitation ou la restructuration partielle ou totale d’un immeuble. Il y consigne de nombreux détails : équipements fixes (éviers, appareils sanitaires, radiateurs, cheminées), sens d’ouverture des portes, affectation des locaux, colonnes d’alimentation et d’évacuation…


- Plans de façade :
Le plan d’une façade positionne tous les éléments de celle-ci (ouvertures, faîtages, acrotères, bandeaux …) à prendre en compte, par exemple, lors d’un projet de restructuration d’un bâtiment.
Scanner dynamique CHCNav RS10:
Moins de temps sur site, plus de précision pour vos projets. Grâce au scanner dynamique RS10, notre équipe sécurise vos relevés avec une rapidité d'exécution record. Nous transformons chaque intervention en un jumeau numérique complet : nuage de points de haute précision / visite virtuelle haute définition / Plan 2D ou 3D pour une gestion de projet simplifiée.


